江戸の伝統を今なお受け継ぐ街、日本橋。
全国各地から商人や職人が集まり、地域のシンボルでもある名橋『日本橋』は五街道の起点となりました。
近年、大手企業の本社が数多くひしめきあい、大型再開発による超高層ビルも数多く建設され、歴史的建築と近代建築が共存し、老舗の路地の向こうに高層ビルといったユニークな景観が楽しめます。
この、『日本橋』を中心とした商業と文化の街の中心地、室町小路とアジサイ通りの交差点に、この春新たに『森パールビル』が入居者を募ります。
この、古くからの歴史と最新の文化が交差するこの場所に、新たな拠点を設けてみませんか!
| 所在地 | 東京都中央区日本橋室町一丁目12番11号 |
|---|---|
| 最寄駅 |
東京メトロ銀座線・半蔵門線 『三越前』駅
JR総武本線 『新日本橋』駅 東京メトロ銀座線・東西線、都営浅草線 『日本橋』駅 |
| 用途地域 | 商業地域 |
| 建物構造・規模 | 鉄筋鉄骨コンクリート造 地下1階地上7階建 |
| 用途 | オフィス |
| 建物設備 | エレベーター、オートロック(電気錠)、機械警備(SECOM)、光ファイバー(引込可)、 |
| 駐車場 | 無 |
| 築年月 | 1979年11月 |
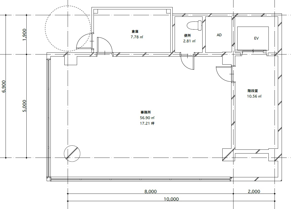
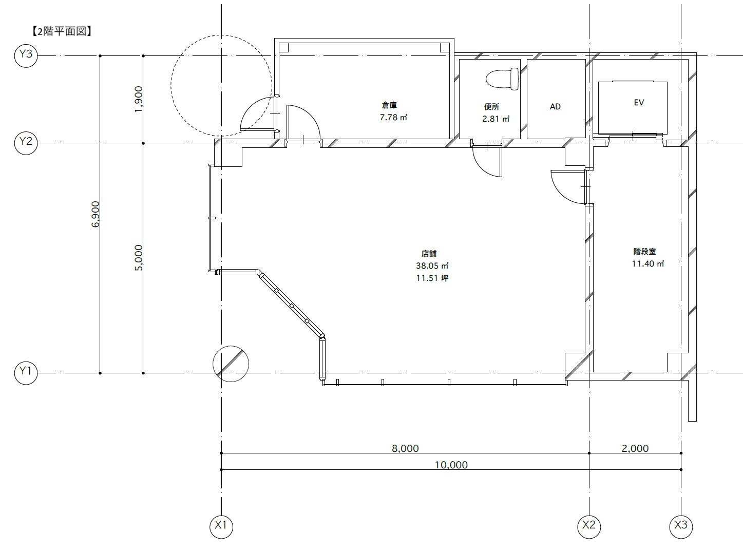
| 建物面積 | 延べ床面積:612.22㎡ |
| 賃貸面積 | 2階:48.64㎡/3階:67.49㎡ |
| 賃料 | 235,418円 |
|---|---|
| 一時金等 | 敷金6ヶ月(償却1ヶ月) |
| 管理費等 | 48,555円(@3,300円/坪) |
| 現況 | リフォーム済 |
| 引渡日 | 即時 |
| 設備 | 冷暖房(個別)、専用トイレ(貸室内)、女子専用トイレ(B1階)、機械警備、ミニキッチン(倉庫内新設) |
| 備考 | ■ 有効天井高2,400mm ■ 天吊エアコン(1基):残置物扱 ■ カードリーダー式電気錠標準装備 ■ SECOM最新警備システム導入(機械警備費は管理費に含む) ■ 各階に電気温水器便座付専用トイレ(B1階に女性専用トイレ設置) ■ ミニキッチン(倉庫内新設済) |
| 物件資料 | PDFダウンロード |
物件に関するお問い合わせはこちら
| 賃料 | 326,652円 |
|---|---|
| 一時金等 | 敷金6ヶ月(償却1ヶ月) |
| 管理費等 | 67,372円(@3,300円/坪) |
| 現況 | リフォーム済 |
| 引渡日 | 即時 |
| 設備 | 冷暖房(個別)、専用トイレ(貸室内)、女子専用トイレ(B1階)、機械警備、ミニキッチン(更新済) |
| 備考 | ■ 有効天井高2,400mm ■ 天吊エアコン(2基):残置物扱 ■ カードリーダー式電気錠標準装備 ■ SECOM最新警備システム導入(機械警備費は管理費に含む) ■ 各階に電気温水器便座付専用トイレ(B1階に女性専用トイレ設置) ■ ミニキッチン(更新済) |
| 物件資料 | PDFダウンロード |
物件に関するお問い合わせはこちら